Visit our four stunning display homes!

Visit our four stunning display homes!

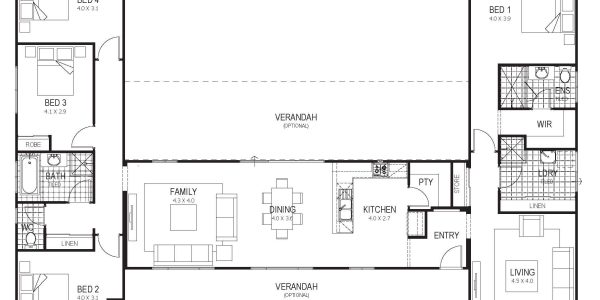
The Roebuck

The Roebuck

Features: Second living area
Optional: Single or double carport, verandah
Total Living Area: 176sqm
Overall House Dimensions: 21.6m wide by 14.4m long

The Roebuck is an excellent alternative to the larger Grange design. Featuring a similar front facade, the Roebuck boasts a fantastic open-plan living area that lets you take in the views whether you’re in the kitchen, dining or living room. A secondary living space off the main entrance leads to the spacious master bedroom with a walk-in robe and ensuite. At the opposite end of the house are three minor bedrooms, each with built-in robes and the family bathroom. Functionality is not missed in this home,
with ample storage and a convenient third shower in the laundry/mudroom.

The Roebuck Brochure

Enquire about this home